Project List

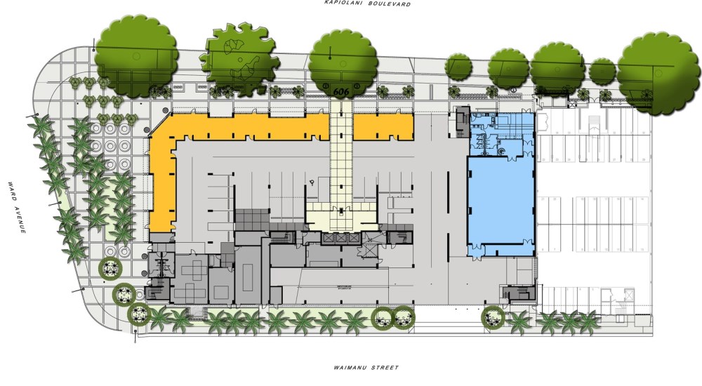
909 Kapiolani Complex

  • Location: Honolulu, Hawaii
  • Type: Housing / Retail
  • Size: 32,698㎡
  • Date: 2005

This is a 33-story, 350,000 SF condominium project in the Makua Area District of Honolulu. It is located at the intersection of Kapiolani Boulevard and Ward Street, and the design takes advantage of this prime location near the Convention Center and performance buildings. The striking exterior of the structure is complemented by water fountains, plazas, walking paths and tropical vegetation, as well as ground-level retail shops and mass transit access.

Project List