Project List

Nanjing Liuhu Town Development

  • Location: Nanjing, China
  • Type: Housing / Shopping / Government Building

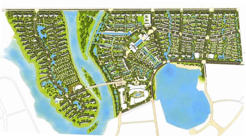
The Liuhu Dragon Lake project is a planned community located near the city of Nanjing, China. It is a mixed residential and commercial development that will provide 17,000 housing units for a total of 56,000 residents. The beautiful 470 acre site is situated on an historic lake and has a branch of the Yangtze River running through it. In addition to the residential units, the community will include schools, a church, a museum, an arboretum and a sports complex. It will also offer 750,000 sf of commercial space that will include a resort hotel and a supermarket.

Project List