Project List

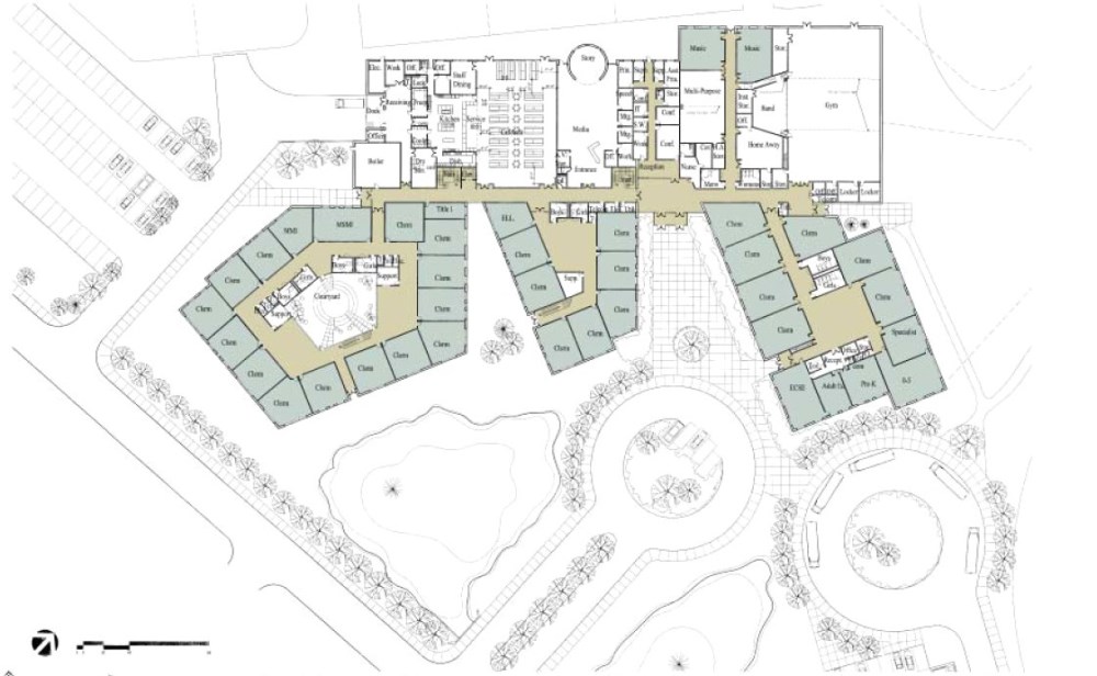
Earle Brown Elementary School

  • Location: Brooklyn Center, Minnesota
  • Size: 15,794㎡
  • Date: 2004

The Earle Brown Elementary School, in Brooklyn Center, Minnesota, replaces an old school that was a centerpiece for this close-knit community. The new school needed to continue that legacy. To this end, it was designed to become a "village for learning," more like a building on a university campus - a high-end, quality structure with unique attention to detail and finish. It is a singular building - housing a contemporary school - that clearly belongs in its city park setting and integrates easily into the surrounding residential neighborhood - and makes a statement about the pride this community has in its children.

Project List